Calculette
Partager
LIMONEST - TERRAIN CONSTRUCTIBLE 651 m2
Description de l'offre
Idéalement situé dans un environnement résidentiel recherché, ce terrain de 651 m² bénéficie d'une exposition Sud/Ouest, offrant un ensoleillement optimal tout au long de la journée.
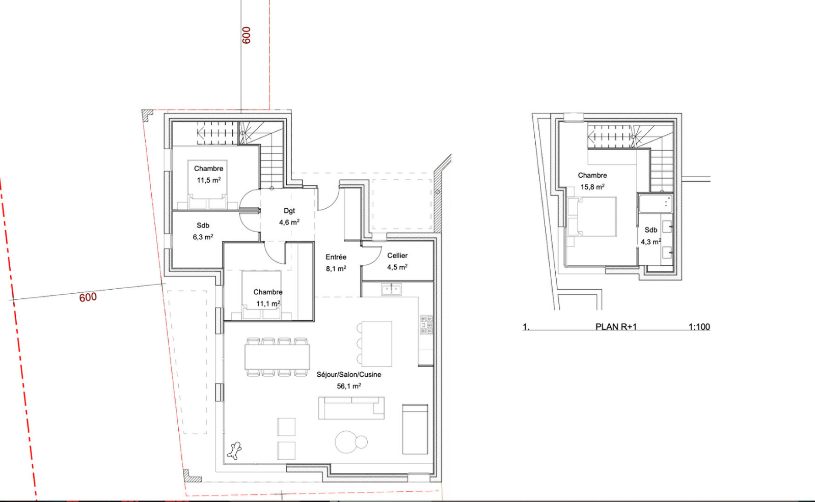
Le bien est vendu avec un permis de construire purgé de tout recours, pour une maison individuelle de 123 m² habitables. Le projet prévoit :
Une superbe pièce de vie de 56 m², lumineuse et ouverte sur le jardin, avec cuisine américaine et grandes baies vitrées.
Trois chambres spacieuses, dont une suite parentale.
Deux salles de bains modernes.
Zone URi2C ? CES : 0,20 %
Ce terrain offre un cadre de vie privilégié, alliant calme, confort et luminosité, à seulement quelques minutes du centre de Limonest et de toutes les commodités.
Un projet idéal pour ceux qui recherchent un bel espace de vie ouvert sur la nature, dans un secteur prisé de l'Ouest lyonnais.
pour plus d'information contactez moi : Ornella RUET 06 60 80 10 88
ornella.ruet@avenir-investissement.fr Ornella RUET (EI) Agent Commercial - Numéro RSAC : 4952582200013 - Lyon.
Descriptif du bien
- surface terrain : 651 m²
- Cuisine : SANS
- Mode de chauffage : Autre
- Type de chauffage : Autre
- Format de chauffage : AUTRE
- Balcon : NON
- Quote Part annuelle des charges : 0 €
- Prix de vente honoraires TTC inclus : 385 000 €
La ville de Limonest (69760)
Nous Contacter
Afficher le téléphone 04 74 26 70 24Les informations recueillies sur ce formulaire sont enregistrées dans un fichier informatisé par La Boite Immo agissant comme Sous-traitant du traitement pour la gestion de la clientèle/prospects de l'Agence / du Réseau qui reste Responsable du Traitement de vos Données personnelles.
La base légale du traitement repose sur l'intérêt légitime de l'Agence / du Réseau.
Elles sont conservées jusqu'à demande de suppression et sont destinées à l'Agence / au Réseau.
Conformément à la loi « informatique et libertés », vous disposez des droits d’accès, de rectification, d’effacement, d’opposition, de limitation et de portabilité de vos données. Vous pouvez retirer votre consentement à tout moment en contactant directement l’Agence / Le Réseau.
Consultez le site https://cnil.fr/fr pour plus d’informations sur vos droits.
Si vous estimez, après avoir contacté l'Agence / le Réseau, que vos droits « Informatique et Libertés » ne sont pas respectés, vous pouvez adresser une réclamation à la CNIL.
Nous vous informons de l’existence de la liste d'opposition au démarchage téléphonique « Bloctel », sur laquelle vous pouvez vous inscrire ici : https://www.bloctel.gouv.fr
Dans le cadre de la protection des Données personnelles, nous vous invitons à ne pas inscrire de Données sensibles dans le champ de saisie libre.
Ce site est protégé par reCAPTCHA, les Politiques de Confidentialité et les Conditions d'Utilisation de Google s'appliquent.
